-
Search MLSResidential Homes
Lorem ipsum dolor sit amet, consectetur adipiscing elit.
Luxury PropertiesLorem ipsum dolor sit amet, consectetur adipiscing elit.
New CommunitiesLorem ipsum dolor sit amet, consectetur adipiscing elit.
CondosLorem ipsum dolor sit amet, consectetur adipiscing elit.
-
Popular Areas
- For Buyers
- For Sellers
- About Us
- Contact
Listings
active
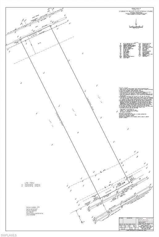
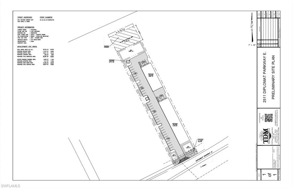
2511 Diplomat PKWY E, Cape Coral, FL 33909
$445,000
1.23 Acres
Listing Office: RE/MAX Gulf Coast Realty
















Been looking to build your own industrial warehouses , you just found here Prime Commercial C3 zoned Industrial in City of Cape Coral - Corbett Road Industrial Park. Lot dimension is 100ft wide by 535 ft +/- deep. Survey available . City Water and sewer at site. Diplomat Parkway allows easy access to US 41 and property is within 600 feet of VA Clinic and Pine Island Road is just minutes. Proposed Site plan for 2 buildings has been reviewed by City with Approvals available upon request as well as Enviromental assessment.
Listing Agent:
License Number:
Offered by: RE/MAX Gulf Coast Realty
Office Phone: (850) 243-2220
MLS: #2026009249
Naples MLS
Date Added: 02/25/2026 12:00:00 am
Last Update: 02/25/2026 06:34:43 pm
Days on Market: 52
Location
- Road/Access: Paved
- HOA Amenities: 0.0
- Originating MLS: Florida Gulf Coast
- County: Lee
Lot
- Zoning: I, CORBETT ROAD INDUSTRIAL PARK DESC IN INST#2006-108975 LOT 12, 33-43-24-C3-00200.0120
- View: View
- Current Use: 10-Vacant Commercial
- Restrictions: No RV
Utilities
- Utilities: Cable Connected, Electricity Connected, Sewer Connected, Water Connected, Electricity on Property
- Water: Assessment Paid
Financial
- Source: Florida Gulf Coast
Property
- Type: Land
- Parcel #: 33-43-24-C3-00200.0120
02/06/2024Off Market
05/18/2023Active
04/11/2023$435,000
02/24/2020$430,000
Property For Sale
Homes in Cape Coral by Price Range
Homes in Cape Coral by Bedrooms
MLS: #2026009249
Source: Naples MLS
<IMG SRC='https://d37ukvrrv3in12.cloudfront.net/mls/logos/IDX_212_large.png' ALT='IDX'>The data relating to real estate for sale displayed on this Website comes in part from the Broker Reciprocity Program of MLS of Naples, Inc. Properties listed with other brokerage firms are marked with the “BR House” logo. Detailed information about such properties includes the name of the brokerage firm with which the seller has listed the property. The properties displayed may not be all the properties listed with brokerage firms participating in the MLS of Naples, Inc. BR Program, or contained in the database compilation of the MLS of Naples, Inc. All information regarding a property for sale, rental or financing, school information and public tax records is from sources deemed reliable; PROVIDED, HOWEVER, that representations and warranties are not made about the accuracy thereof, and such information is subject to errors, omissions, updates, modifications, changes of price, rent rates, commissions, prior sales, leases or financing, changes in school boundaries, or withdrawal without notice. All information displayed on this Website should be independently verified if any person intends to engage in a transaction based upon such information.<BR>Copyright 2026 MLS of Naples, Inc. All Rights Reserved. Data displayed may be a portion of, and not a complete set of all listings published in the MLS.
View Listing2511 Diplomat PKWY E, Cape Coral, FL 33909 is a 1.23 Acres, Land built in .
This property is currently available and was listed by Naples MLS on 02/25/2026 12:00:00 am. The MLS # for the property is MLS #2026009249.
Powered by CT IDX Pro+ & RealtyWatch Solutions.